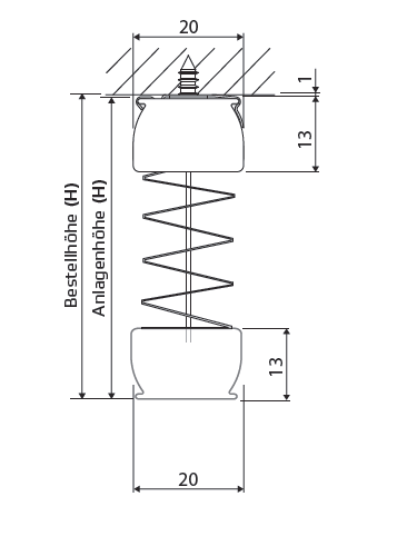
IP 03Frei hängende Anlage mit Schnurzug, oben fest
Modell-Information
sp03